Eagle River Hudson

Eagle River Hudson

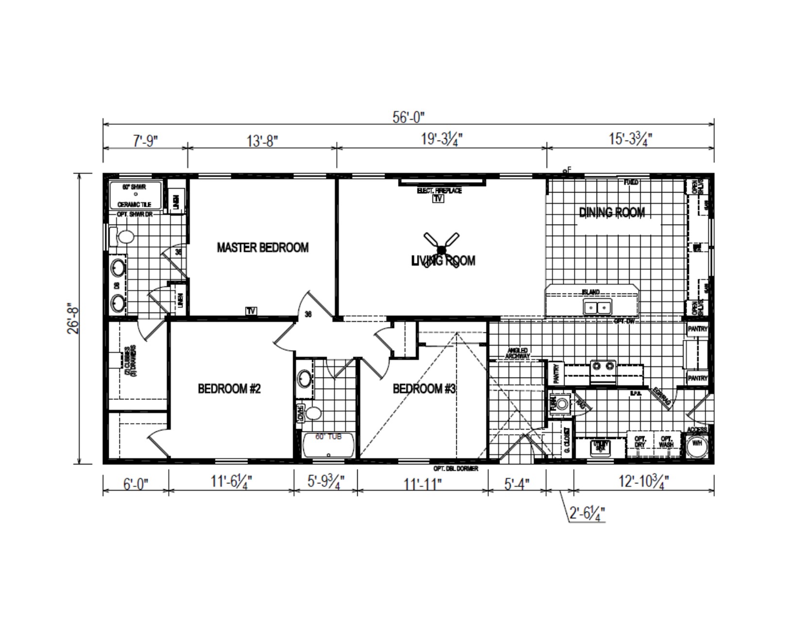
Model #: HD-60J1262 | Dimensions: 28x56

3 bed(s)
2 bath(s)
1,494 sqft

Description:

Style: Sectional Homes
Manufacturer: Eagle River Homes
Location: Brockway, PA

On Display?: Yes